Type E & F3 - BHK - 1695 Sq. Ft.
Type D - 3 BHK - 2020 Sq. Ft.
Type D - 4 BHK - 2020 Sq. Ft.
Type G2 - 4 BHK - 2170 Sq. Ft.
Type C 17 - 4 BHK - 2550 Sq. Ft. -
Type B 20 - 4 BHK - 2550 Sq. Ft. -
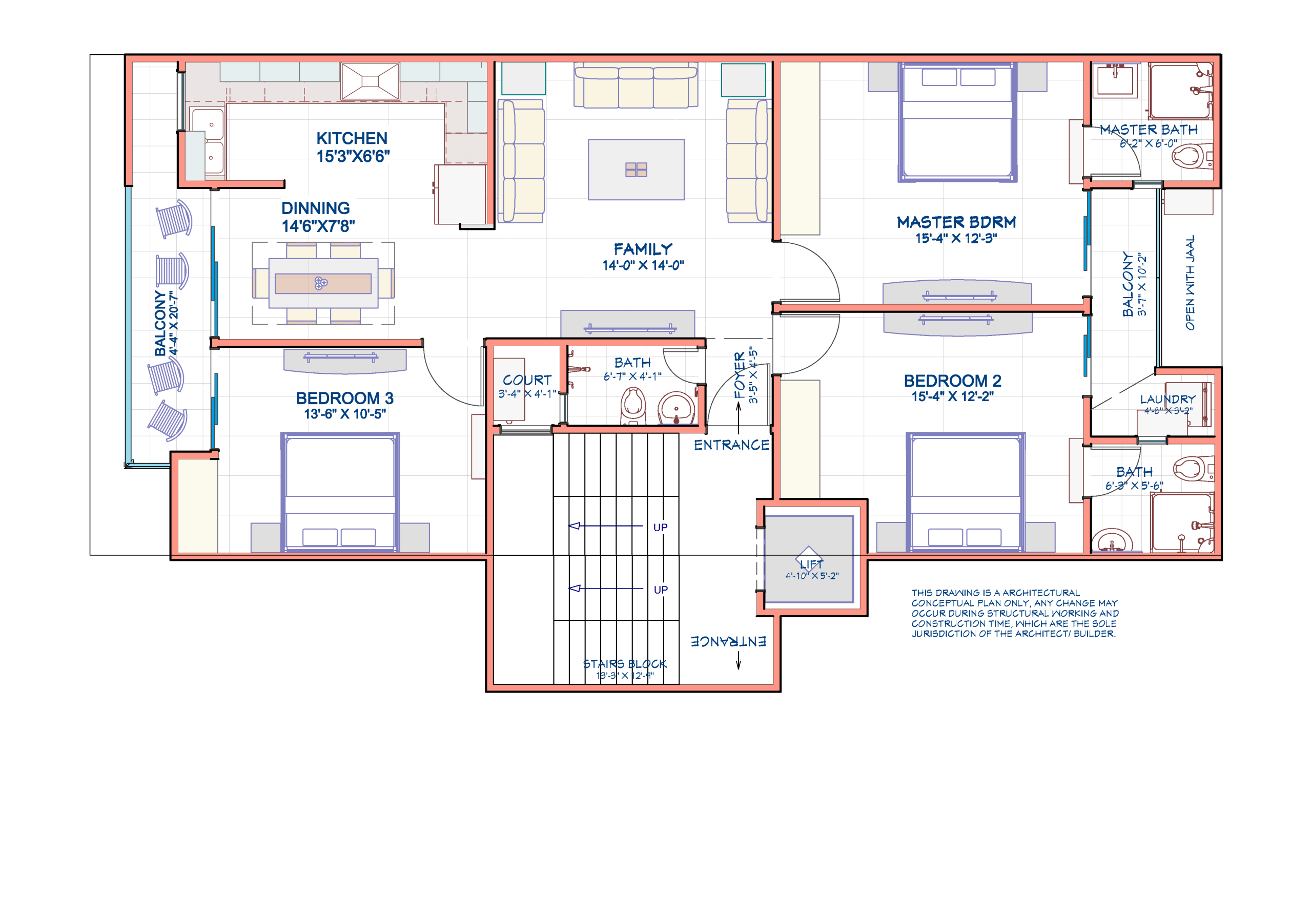
Type C 11 - 4 BHK - 3500 Sq. Ft.
